PIRS 1
aranżacja wnętrza mieszkania
Projektant: Studio K-Projekt
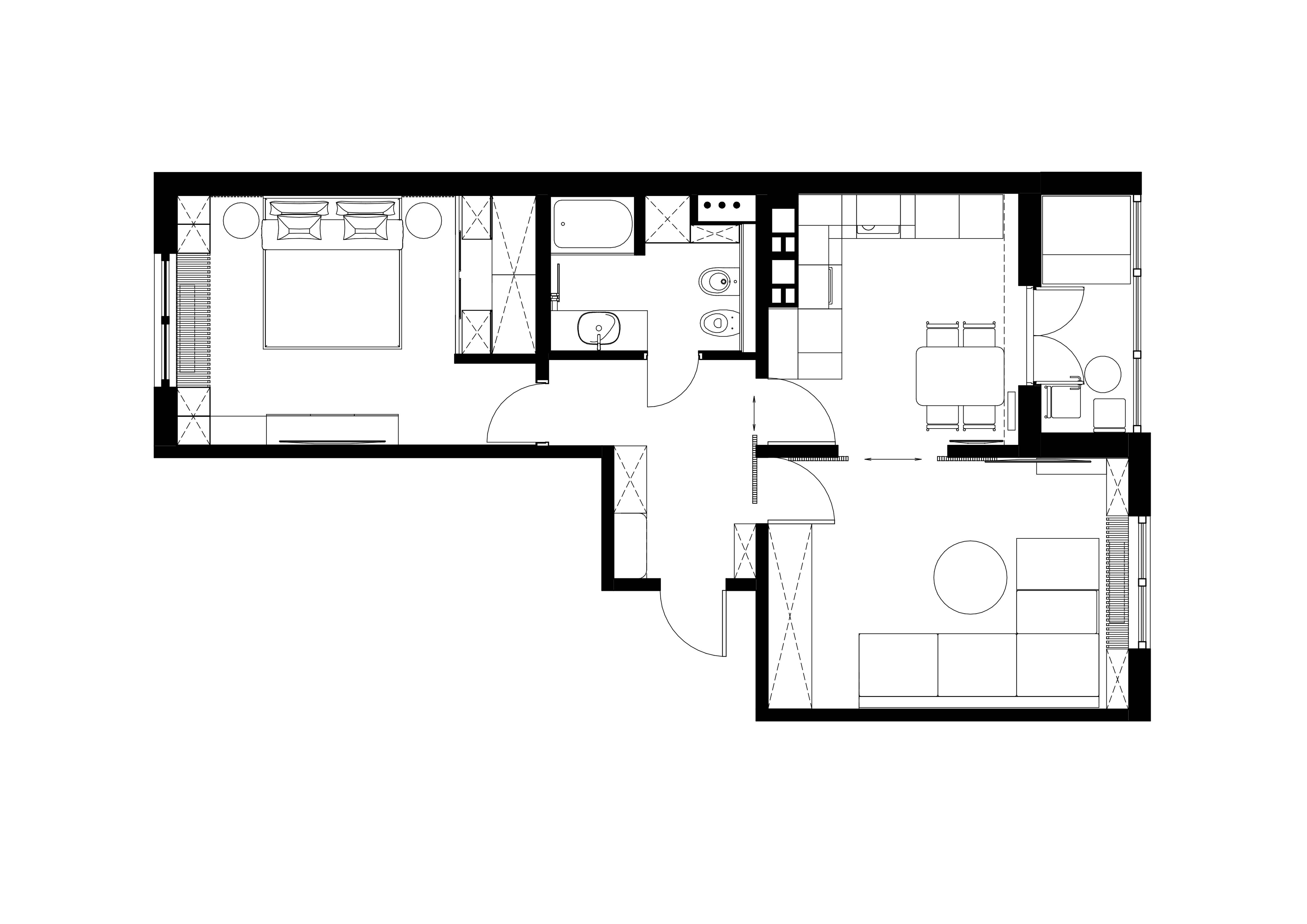
Powierzchnia: 61,5 m²
rok 2021
OPIS PROJEKTU
1Wnętrze całego mieszkania zaprojektowane jest w jednolitej kolorystyce. Połączenie grafitu i bieli z fakturą marmuru daje wrażenie absolutnie nieskazitelnej i surowej przestrzeni.
2Projekt ten doskonale łączy klasyczne listwy i przypodłogowe z nowoczesnym oświetleniem i geometrycznie poprawnymi meblami.
3Na szczególną uwagę zasługuje sypialnia. Niezwykły design drzwi szafy, wiele pionowych prostych linii i ciemne mandarynkowe akcenty. Obraz nad wezgłowiem zdecydowanie przyciąga wzrok.
4Obramowane fronty kuchenne otrzymują nowe życie dzięki odpowiedniemu doborowi kolorów i okuć. Salon jest dowodem na to, że minimum mebli i dekoracji to klucz do fajnego designu.






























